070-820 98 92
English
Kornoeljestraat 76
Verkocht
Vraagprijs € 475.000 k.k.
+30
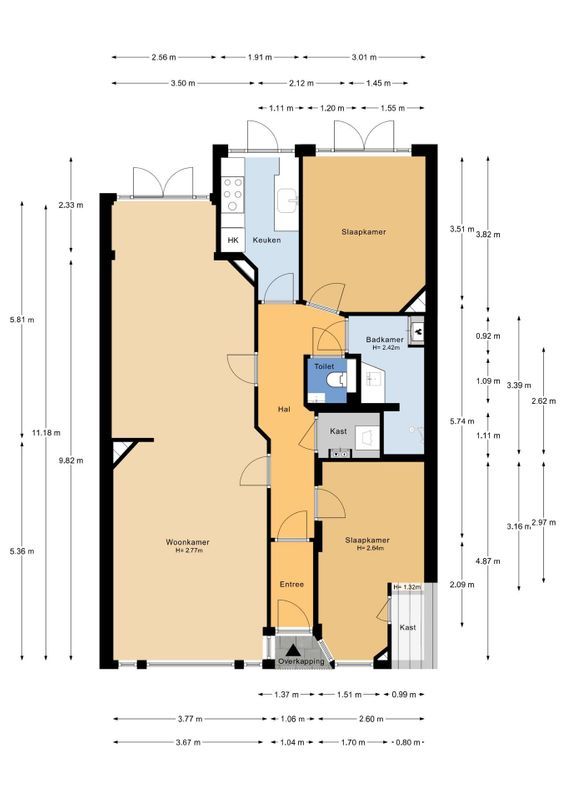
2 slaapkamers
89 m²
B
Overzicht
Omschrijving
Kenmerken
Media