070-820 98 92
English
Blekerssingel 1-a
Verkocht
Vraagprijs € 279.500 k.k.
+18
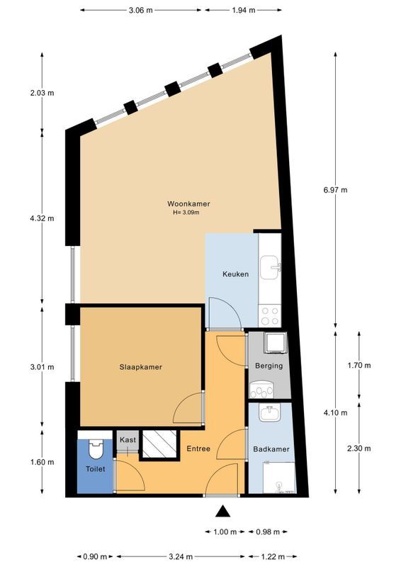
1 slaapkamer
52 m²
A
Overzicht
Omschrijving
Kenmerken
Media
Plattegronden