070-820 98 92
English
Blekerssingel 1-b
Verhuurd
€ 1.950 p.m.
+26
2 slaapkamers
85 m²
A
Overzicht
Omschrijving
Kenmerken
Media
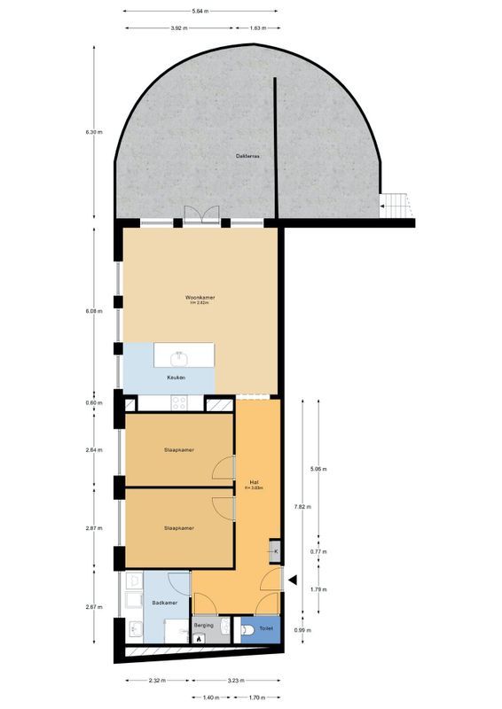
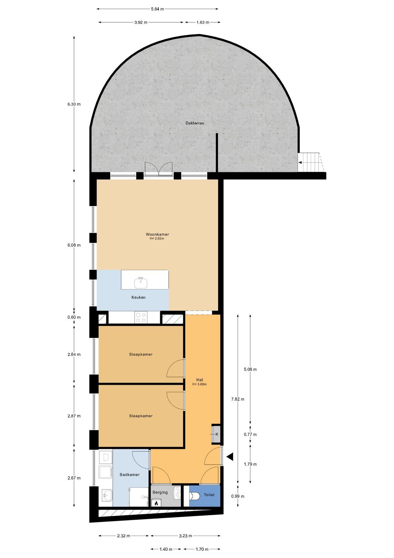
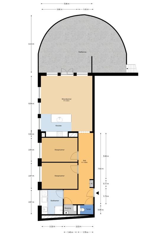
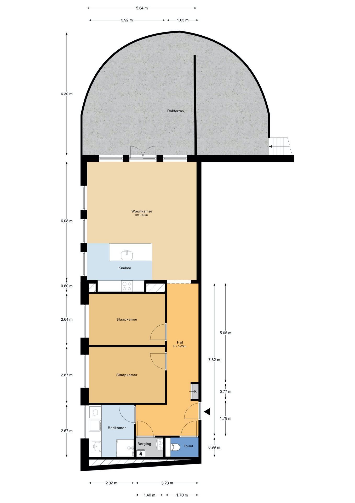
Plattegronden