070-820 98 92
English
Mariottestraat 29
Verkocht
Vraagprijs € 350.000 k.k.
+27
1 slaapkamer
78 m²
F
Overzicht
Omschrijving
Kenmerken
Media
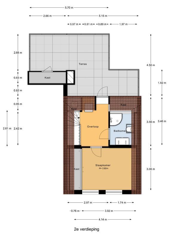
Plattegronden